Obra Finzalizada

h. pueyrredon 434

NUEVA
PERSPECTIVA
A LA CIUDAD

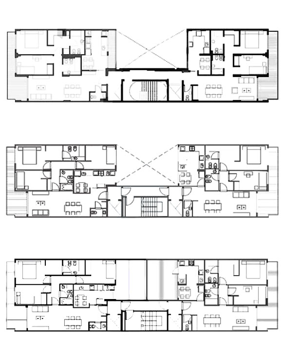
Unidades de 3 y 4 ambientes de alta prestación.

El edificio cuenta con un hall de entrada de categoría con ascensores de última generación.

Las cocheras se sitúan en subsuelo, planta baja y primer piso.

icono ambientes

3 y 4
aMBIENTES

icono cocheras

AMPLIAS
COCHERAS

icono parrilla

TERRAZA
C/PARRILLA

icono sum

MODERNO
SUM

obra finalizada

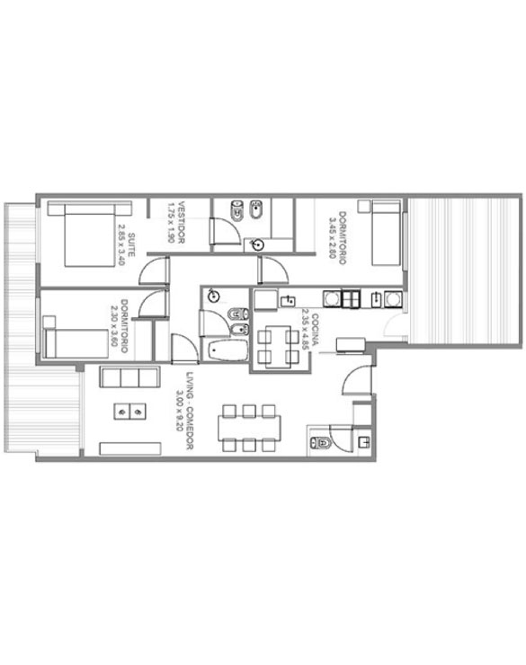
PISO 2 CONTRAFRENTE

3 ambientes

plano Honorio Pueyrredon 434
render 1 render 2 render 3 render 4 render 5 render 6

AVANCE DE OBRA

100

%

demolición

100

%

EXCAVACIÓN

100

%

ESTRUCTURAS

100

%

MAMPOSTERÍA

100

%

INSTALACIONES

100

%

TERMINACIONES

UBICACIÓN

Este barrio se encuentra en el medio de la Ciudad de Buenos Aires. Debe su nombre a la pulpería que en 1821 instaló don Nicolás Vila en la esquina de las actuales calles Rivadavia y Emilio Mitre, que era reconocida por su típica veleta en forma de caballito.

Como todos los barrios del oeste, también éste progresó en forma notable con la llegada del ferrocarril, que desde 1857 atravesó el barrio adoptando el nombre de la famosa pulpería para su estación en el lugar.

icono subte

Subte:

Líneas
A

icono tren

Tren:

Líneas
Sarmiento

icono colectivo

Colectivos:

Líneas
55-84-92-145
172-181-242

ESTAMOS
EN CONTACTO

Nombre *
Ingresá tu nombre
Email *
Ingresá tu email
Teléfono *
Ingresá tu teléfono
Comentarios *
Ingresá tu consulta